Резервуары и металлоконструкции
от завода-производителя

Доставка по всей России!

slide-s02

Прямоугольные резервуары

Прямоугольные резервуары – это цельносварные металлические емкости прямоугольной формы. Изготовлены из листового проката конструкционной углеродистой, низколегированной, нержавеющей стали. Предназначены для хранения питьевой, технической воды, нефтепродуктов, щелочей, химикатов. Устанавливают в жилищно-коммунальных, тепличных хозяйствах, на производственных предприятиях.

 

Наша продукция

Завод Резервуаров и Негабаритных Металлоконструкций производит прямоугольные резервуары в стандартном исполнении и под заказ. По типовому проекту изделие имеет следующие технические параметры:

 

Технические характеристики Числовое значение
Объём, м³, не более 100
Рабочее давление свободный налив
Температура окружающей среды, °C от -40 до +40
Срок эксплуатации, лет 20

 

Завод РиНМ имеет высокоточное оборудование, позволяющее выполнять заказы любой сложности. Наши специалисты рассчитают проектную документацию в соответствии с заявленными характеристиками, условиями предполагаемой эксплуатации. В кратчайшее время изготовят элементы конструкции, соберут ее, проведут соответствующие испытания. На всех этапах производства присутствует отдел технического контроля. Каждое изделие имеет сертификат качества, полный пакет сопроводительных документов.

 

Используемый материал

Прямоугольные резервуары предназначены для хранения различных жидкостей. Изготавливают их из сталей следующих марок:

  • углеродистая сталь Ст3пс4 – для районов с понижением температуры воздуха до -20°C;
  • низколегированная сталь 16ГС – если температура окружающего пространства опускается до -40°C;
  • конструкционная низколегированная сталь 09Г2С – для районов, где температура самой холодной пятидневки не ниже -60°C;
  • нержавеющая пищевая сталь 12Х18Н10Т – для хранения питьевой воды, пищевой продукции, агрессивных технологических жидкостей.

По требованию заказчика, исходя из особенностей условий эксплуатации допускается использование других марок стали. Мы рассмотрим любые варианты, подберем наиболее подходящий материал, отвечающий поставленным задачам, не вступающий в химическую реакцию с рабочей средой.

 

Особенности конструкции

Стальные прямоугольные резервуары имеют прочный цельносварной корпус, соответствуют нормам ГОСТ, ТУ, требованиям заказчика. В стандартном исполнении изделия состоят из следующих элементов:

  • металлический цельносварной корпус;
  • горловина, технологический люк, штуцера;
  • стальные или железобетонные опоры;
  • ребра жесткости, теплоизоляция и гидроизоляция.

По требованию заказчика изделия оснащают дополнительным оборудованием, контрольно-измерительными приборами. Емкость может иметь одну или несколько камер, разделенных герметичными перегородками.

 

Защита от коррозии

При изготовлении прямоугольных резервуаров из углеродистой низколегированной стали необходимо заблаговременно позаботиться о предотвращении прямого контакта металлической поверхности с рабочей средой, окружающим пространством. Металл защищают от коррозии следующим образом:

  • На внешнюю металлическую поверхность наносят гидроизоляцию. Используют горячее оцинкование, грунт, эмали, технологические смазки, резинобитумные мастики. Защитный материал наносят в несколько слоев, зачастую их комбинируют, тем самым увеличивая эффективность.
  • На внутреннюю поверхность резервуара наносят эпоксидные, цинксодержащие материалы. Такое покрытие не должно вступать в химическую реакцию с рабочей средой.

Совокупность применения внешней и внутренней антикоррозионной обработки увеличивает срок службы изделия. Своевременное восстановление защитного слоя экономит финансовые затраты владельца емкости, продлевает указанный период на несколько лет.

 

Применение

Прямоугольные резервуары эргономично вписываются в ограниченное пространство, их легко установить на производстве, в складском помещении, на открытом пространстве. Используют емкости в следующих отраслях:

  • жилищно-коммунальные хозяйства – для хранения питьевой воды;
  • предприятия пищевой промышленности – для хранения пищевой продукции;
  • тепличные, фермерские хозяйства – для хранения запаса питьевой, поливочной воды, удобрений.

Зачастую эти емкости имеют двойное назначение. Содержат необходимый запас воды для заправки спецтехники, пожарных машин.

 

Прямоугольные резервуары применяют в различных производственных отраслях. В них хранят воду, нефтепродукты, масла, пищевую продукцию, удобрения, технологические жидкости. Устанавливают их на поверхности грунта или под землей, ниже точки промерзания. Используют в качестве временного накопителя рабочей среды, либо подключают к беспрерывному технологическому циклу. Перемещают рабочею среду самотеком или с помощью насосного оборудования.

 

Для хранения ядохимикатов, опасных веществ используют емкости с двойными стенками. Их изготавливают по принципу «‎стакан в стакане».

 

Завод Резервуаров и Негабаритных Металлоконструкций изготавливает, доставляет и устанавливает прямоугольные резервуары из углеродистых, низколегированных, нержавеющих сталей по всей территории России. Продукцию можно транспортировать на автомобильном, железнодорожном, водном транспорте соблюдая правила перевозки грузов. Изделия транспортных габаритов заводской готовности, их перевозят в собранном виде. Продукцию больших габаритов перевозят по частям, собирают на месте монтажа.

 

Устанавливают прямоугольные резервуары на заранее подготовленное железобетонное основание, металлические опоры. Наши специалисты выполнят работу любой сложности под ключ. Заказать товар можно на сайте, по телефону, электронной почте. Консультация бесплатна.

Преимущества

  • Цены от производителя

  • Гарантия качества

  • Комплектация объектов под ключ

  • Производим монтаж/демонтаж

  • Оперативная доставка в любой регион

  • Быстрые сроки поставки,
    четкое соблюдение сроков

  • Персональный подход

  • Гарантийное обслуживание

  • Разработка КМД от 2-х
    рабочих дней

  • Составление КП от 15 минут

Подготовим коммерческое предложение
с учетом ваших индивидуальных технических требований

Скачать опросный лист

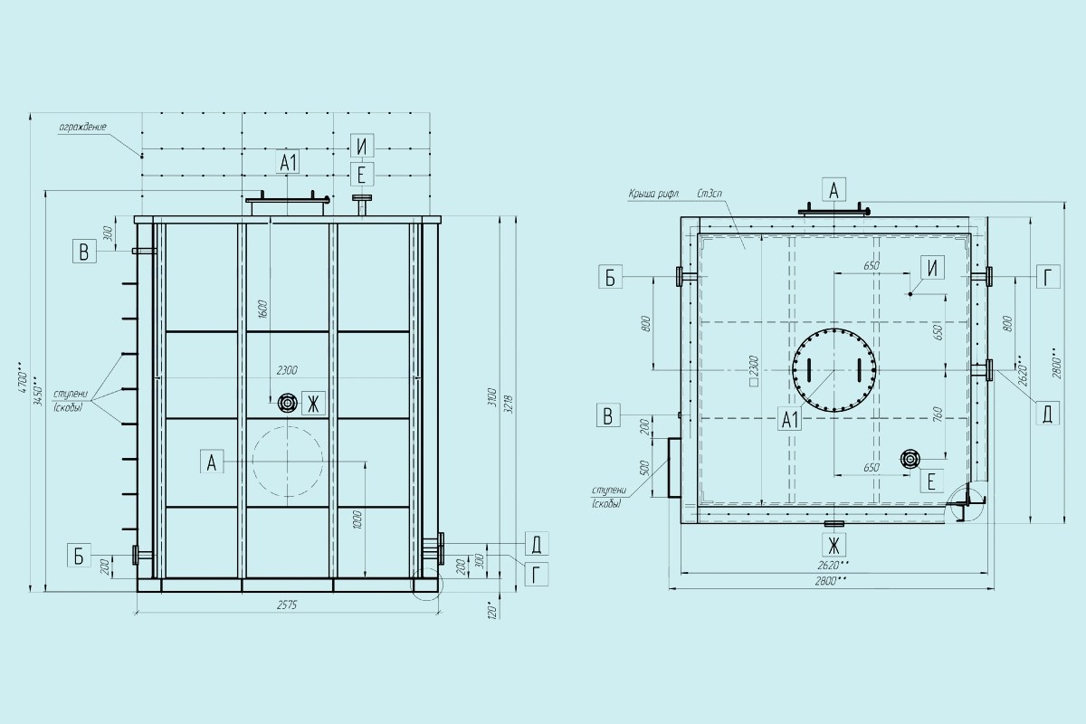
Технические характеристики

Часто используемые комплектации прямоугольных резервуаров:

А-люк-лаз, А1-люк, Б-штуцер слива, В-штуцер заполнения, Г-для датчика уровня, Д-для насоса, Е-для подсоединения в цепочку, Ж-для опорожнения системы, И-воздушник

Чертеж

Чертеж Прямоугольные резервуары

Доставка

Чтобы избавить Вас от необходимости поиска логистической компании, мы готовы взять на себя работу по осуществлению доставки оборудования на Ваш объект.

Преимущества осуществления доставки при помощи нашей компании:

  • Работа только с проверенными временем подрядчиками
  • Четкое соблюдение сроков
  • Разумные цены
  • При необходимости, груз можно застраховать
  • Стоимость услуги рассчитывается индивидуально, в зависимости от региона доставки и объема груза.

Свяжитесь с нашим менеджером по телефону или через форму сайта и мы подготовим для Вас расчет.

Скачать опросный лист